Location: Changchun, China
Year: 2020
Client: Jilin Changchun Hailian Industrial Co.
Design Studio: AUD, Shanghai
Status: Completed
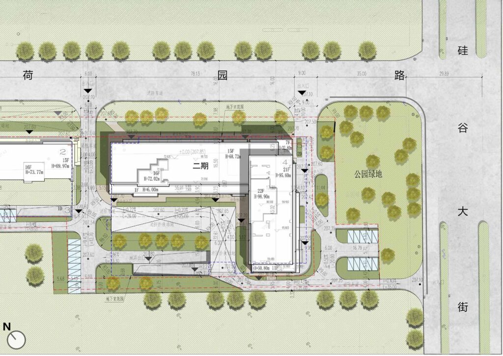
The “Sunshine Silicon Valley” commercial and office complex (Phase II) is located in Changchun City, Jilin Province. It is bordered by Silicon Valley Avenue to the east, Heyuan Road to the north, and is close to Changchun Australia City and the Changchun Second Telecom Hub Building to the southwest.











